Project H – Silo Relocation and Platform Addition

We were contacted via an existing client to come to site to look at relocating an ash silo we installed and commissioned back in 2019 Project HAD - Lean Phase Conveying System - Filter Designs

After the project was complete, the Managing Director said "It was nice to work with Darren and the team again after a few years since the install. The silo move was professionally managed and therefore trouble free to plant operations. We would consider the team again on future works."

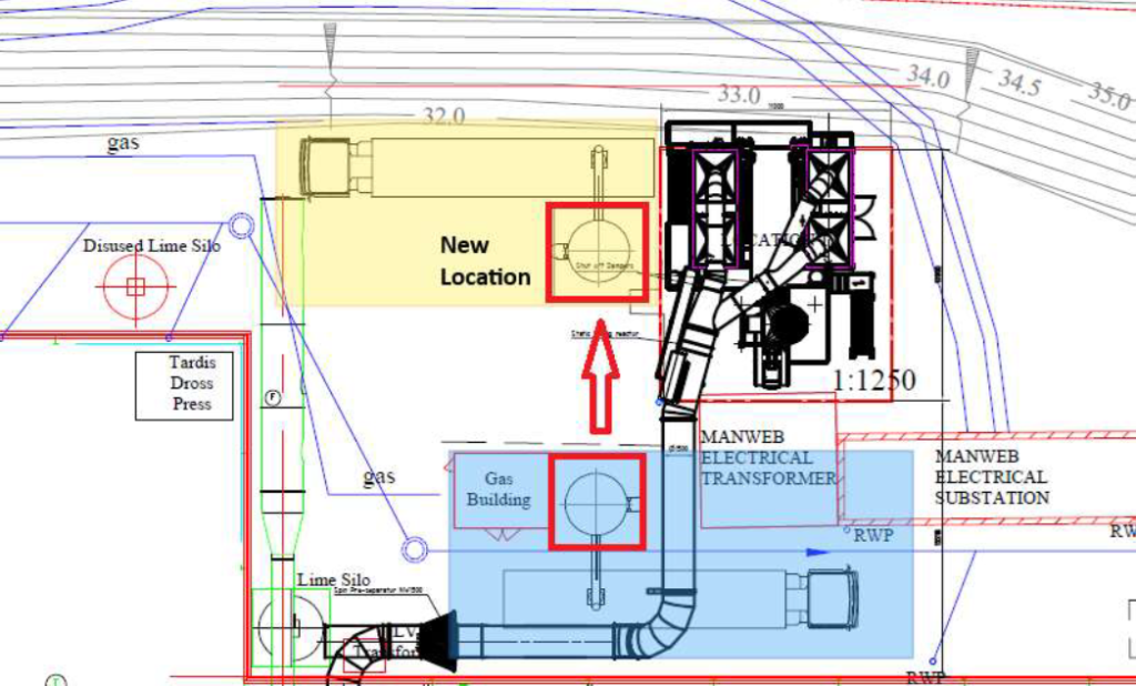
For this project, site wanted to free up some space and wanted to make access for tanker collections in an alternative position as the original silo tanker collection position was also a throughfare for production.

We were then also asked to design a bespoke access platform to allow maintenance on the filter separator located on the top of the existing silo.

The new access platform was to be incorporated into the silo body and the silo handrailing needed to be modified.

We carried out FEA analysis on the proposed platform to ensure it was as per BS6399 rated as ‘’for occasional personnel, small tools and light equipment’’.

Once the access platform had been confirmed as appropriate for the standard which requires a load of between 2.0 and 4.0 kN/m2 we placed this into fabrication. The site wanted a quick turnaround on this, and we managed to fabricate the access platform and get it galvanised in just under a month.

Prior to relocating the silo, we needed to remove the bellows system:

And the inclined screw:

We had allowed a week on site, with 3 days of contract crane lifts.

The seven year old silo continues to collect ash from the aluminium furnaces filtration plant, ready for tanker discharge - reducing labour involvement in removing the ash from the process continually.

More from us

Get in touch

T: 01858 419 104

E: [email protected]

Our recent Projects

An empty warehouse is always a welcome place to start a project.  This is because we have a blank canvas with which to design an ideal layout for a flue gas treatment plant.  Once installed, our system cleans the gases from a waste boiler and waste infeed plant and will allow the end user to stop transporting waste around the country and manage it locally, save on transport costs and produce some electricity too.

Project VC - Turnkey Flue Gas Treatment Plant for Waste Boiler

Project JP2 - Complete Flue Gas Treatment System for Intumescent Paint Furnaces (Phase 2)

Filter Designs is a trading name of Turnkey Filtration Limited, a limited liability company registered
in England under number 16279255, whose registered office is at Filtration House, Farndon Road, Market Harborough,
LE16 9NP - Website by 1PCS